Contact Laura Uribe
Schedule A Showing
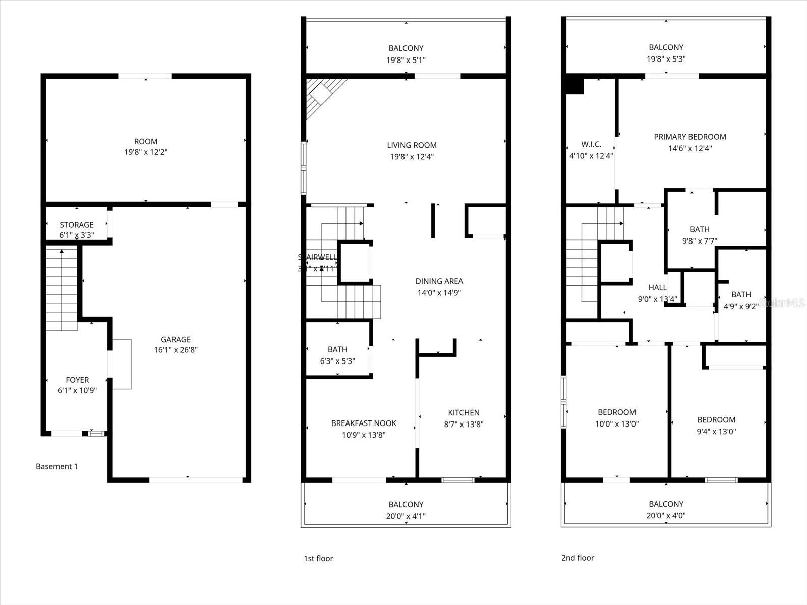
9170 Blind Pass Road, ST PETE BEACH, FL 33706
Priced at Only: $659,000
For more Information Call
Office: 855.844.5200
Address: 9170 Blind Pass Road, ST PETE BEACH, FL 33706
Property Location and Similar Properties
- MLS#: TB8476907 ( Residential )
- Street Address: 9170 Blind Pass Road
- Viewed: 11
- Price: $659,000
- Price sqft: $358
- Waterfront: No
- Year Built: 1988
- Bldg sqft: 1840
- Bedrooms: 3
- Total Baths: 3
- Full Baths: 2
- 1/2 Baths: 1
- Garage / Parking Spaces: 1
- Days On Market: 21
- Additional Information
- Geolocation: 27.7546 / -82.7584
- County: PINELLAS
- City: ST PETE BEACH
- Zipcode: 33706
- Provided by: KELLER WILLIAMS ST PETE REALTY
- Contact: Chris Price
- 727-894-1600

- DMCA Notice
-
DescriptionOne or more photo(s) has been virtually staged. COASTAL VIBE! WALK TO THE BEACH! Live the Florida dream from this beautifully appointed coastal townhouse in St. Pete Beach just a short stroll to Sunset Beach, waterfront dining, beach bars, and local shops. Perfectly positioned with a public park directly across the street featuring tennis courts, a public dock, and a boat ramp, this home offers the ultimate beach and boating lifestyle. Plus, as an end unit located right next to the community pool, youll enjoy added privacy and convenient access to a refreshing swim just steps from your door. Inside, the second floor is the heart of the home a sun drenched living, dining, and kitchen space with front and back balconies that capture the coastal breezes. French doors and plantation shutters enhance the light filled, airy ambiance. The updated kitchen showcases solid wood cabinetry and granite countertops, which continue throughout the bathrooms, dining room bar area, and surround the fireplace creating a cohesive and elevated look. Add warmth and ambiance for relaxing evenings by the fireplace which has a ventless, eco friendly insert that uses bioethanol fuel to create real, smoke free flames without ash, soot or chimneys. All bedrooms are privately situated on the third floor, along with two full bathrooms. The primary suite features its own private balcony, an ensuite bath, and a spacious walk in closet your peaceful retreat after a day in the sun. On the ground level, enjoy a fully fenced private back patio ideal for grilling, entertaining, or soaking up the sunshine. The oversized garage is large enough for a car and a golf cart. It includes abundant storage plus a separate bonus room perfect for guests, a game room, home office, gym, or dedicated beach and bike storage with direct access to the patio. This unbeatable location puts you close to everything. Enjoy the weekend markets on Corey Avenue, local favorites like the John's Pass Seafood Festival, the famous Treasure Island Sanding Ovations and seasonal kite festival or spend the day exploring Pass a Grille just down the road. Walkability, sunshine filled interiors, and endless local events this is coastal living at its finest. Dont miss your opportunity to own a slice of paradise.
Features
Appliances
- Dishwasher
- Dryer
- Electric Water Heater
- Microwave
- Range
- Refrigerator
- Washer
- Wine Refrigerator
Home Owners Association Fee
- 448.00
Home Owners Association Fee Includes
- Cable TV
- Common Area Taxes
- Pool
- Maintenance Grounds
- Sewer
- Trash
- Water
Association Name
- Brittany Starratt / Holiday Isles Property Managem
Association Phone
- 727-548-9402
Carport Spaces
- 0.00
Close Date
- 0000-00-00
Cooling
- Central Air
Country
- US
Covered Spaces
- 0.00
Exterior Features
- Balcony
- French Doors
- Lighting
- Sidewalk
Fencing
- Vinyl
Flooring
- Carpet
- Ceramic Tile
- Wood
Furnished
- Unfurnished
Garage Spaces
- 1.00
Heating
- Central
Insurance Expense
- 0.00
Interior Features
- Built-in Features
- Ceiling Fans(s)
- Crown Molding
- Dry Bar
- Eat-in Kitchen
- High Ceilings
- PrimaryBedroom Upstairs
- Stone Counters
- Thermostat
- Walk-In Closet(s)
Legal Description
- MARINA PARK LOT 5
Levels
- Three Or More
Living Area
- 1840.00
Lot Features
- Flood Insurance Required
- FloodZone
Area Major
- 33706 - Pass a Grille Bch/St Pete Bch/Treasure Isl
Net Operating Income
- 0.00
Occupant Type
- Owner
Open Parking Spaces
- 0.00
Other Expense
- 0.00
Parcel Number
- 25-31-15-55317-000-0050
Parking Features
- Guest
- Oversized
Pets Allowed
- Yes
Property Condition
- Completed
Property Type
- Residential
Roof
- Shingle
Sewer
- Public Sewer
Tax Year
- 2025
Township
- 31
Utilities
- Cable Connected
- Electricity Connected
- Phone Available
- Public
- Sewer Connected
- Water Connected
View
- Garden
- Pool
Views
- 11
Virtual Tour Url
- https://br-media.aryeo.com/videos/019c6c6b-3d7d-707d-a138-4da5287dfd61?v=489
Water Source
- Public
Year Built
- 1988





























































